お問い合わせ
お気軽にお問い合わせください
札幌市白石区菊水上町4条2丁目359-1
アクセス
011-833-1120
理事長あいさつ
院長あいさつ
副院長あいさつ
診療外科部長あいさつ
看護部
診療技術部
事務局
当院について
クリニック概要
クリニックの理念
診療科・部門
医師紹介
手術内容・症例数
セカンドオピニオン
個人情報開示手続き
フロアマップ
採用情報
お問い合わせ
外来のご案内
入院のご案内
内科・腎臓内科
外科・整形外科
夜間診療
訪問診療・訪問看護
各種健康診断・健診
血液浄化センターについて
血液浄化法(透析)のご案内
夜間透析
旅行透析
腹膜透析
在宅透析
送迎について
行事食のご案内
ごあいさつ
バスキュラーアクセスについて
バスキュラーアクセス手術
シャントトラブルと治療
シャントの維持管理
腹膜透析
診察時間・外来担当
HOME
>
当院について
>
フロアマップ
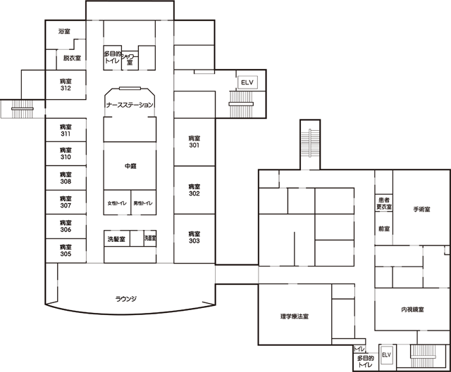
フロアマップ
1階フロアマップ
2階フロアマップ
3階フロアマップ
受付
待合室
診療室
検査室
CT室
臨床検査室
ナースステーション
血液浄化センター
個室A1
オーバーナイト 個室透析室
準個室
更衣室
病室(個室A)
ラウンジ
浴室
理学療法室
手術室
内視鏡室
当院について
CLINIC
当院について
クリニック概要
クリニックの理念
診療科・部門
医師紹介
手術内容・症例数
セカンドオピニオン
個人情報開示手続き
アクセス
フロアマップ
採用情報
お問い合わせ